aus dem Ortschaftsrat

 

 

 

 

 

 

Schönstes Fleckchen auf Erden…Untergrombach!

 

Das behaupten zumindest die Bewohner, alt eingesessen seit Generationen oder solche, die es im Laufe ihrer Lebensbahn nach Untergrombach geführt hat. Und die hier bis heute glücklich leben.

Ein Bild, das Text, draußen enthält.

Automatisch generierte BeschreibungSo sind in den letzten 5 Jahren etliche Neubauprojekte umgesetzt worden. Das Auffälligste ist derzeit das Baugebiet am Bahnhof in dem jüngst 31 Reihenhäuser entstanden sind und vielen Menschen ein neues Zuhause sein wird.

 In der Obergrombacher Straße entsteht ein neuer Wohnkomplex mit Etagenwohnungen. Alte Bausubstanzen werden hier mit Neubauten verbunden und werden so zur Zukunft. Und auch der soziale Wohnungsbau wurde selbstverständlich nicht vergessen…so entstehen in der Ernst Renz Straße bezahlbare Wohnungen in einem neuen Mehrfamilienhaus.

Und so findet Jeder sein Plätzchen in Untergrombach!

Mit der sogenannten Innenraumverdichtung konnten wir bislang das Öffnen neuer Baugebiete vermeiden. Damit gelingt uns ein wichtiger Schritt im Punkto Naturschutz, in dem wir der Tier- und Pflanzenwelt erstmal keine weiteren Flächen für Neubaugebiete wegnehmen.

Die vorhandenen Grundstücke werden weitestgehend ökologisch bebaut, Wärmedämmung, begrünte Dachflächen und modernes Heizen sind in Untergrombach im Hinblick der Nachhaltigkeit, zum hohen Standard geworden.

Alten Gebäuden durch energetische Sanierung zu neuem Leben erwecken und die Umfunktionierung von Bauwerken (altes Schulhaus wird Verwaltungsstelle und KiTa) erhalten Bewährtes und Erinnerungen gleichermaßen. Untergrombach hat sich bedürfnisorientiert entwickelt und nicht zuletzt wegen des guten Angebotes im Bereich ÖPNV und der guten Verkehrsanbindung an BAB und Landstraßen, ist Untergrombach ein attraktiver Standort vor allem für Familien.

 Ein Zuhause für Familien die, wenn Corona nicht wäre, sich möglicherweise bereits in unseren örtlichen Vereinen engagieren würden. Kinder, auf die unsere Kindergärten und die Joss-Fritz-Schule bereits warten, um sie willkommen zu heißen. Wir würden Menschen treffen, die zu Freunden werden. So grüßen und begrüßen wir unsere neuen Mitbürger/Innen und Nachbarn mit einem herzlichen Willkommen auf dem schönsten Fleckchen Erde im „Badnerland“.

Karina Merten

 

Bau einer 5-gruppigen Kindertagesstätte

Arche Noah 2.0

Untergrombach wächst…und das ist schön! Eine Vielzahl familienfreundlicher Doppel und Reihenhäuser entstehen derzeit am alten Bahnhof. Das bringt Familien und junge Paare mit Kinderwunsch zu uns nach Untergrombach. Zwar malen die Mühlen langsam, aber immerhin malen sie und so hat das Amt für Familien und Soziales bereits 2019 einen zukünftig erhöhten Bedarf an Betreuungsplätzen in Untergrombach festgestellt.

Und weil selbst eine Herzensangelegenheit wie ein Kindergarten mit betriebswirtschaftlichen Augen gesehen werden muss ist schnell klar, dass eine 5- gruppige Einrichtung wesentlich wirtschaftlicher ist als eine Dreigruppige.

Platz ist vorhanden, auf das Erdgeschoss wird einfach eine Etage „draufgepackt“. Eigentlich eine „win-win“ Situation. Meistens wird zu klein geplant, diesmal scheinen die Vorteile zu überwiegen. Die „alte “ Arche Noah zieht dann mit Sack und Pack in neue Räumlichkeiten. Der „alte“ Kindergarten bietet somit Flächen, die man dann eventuell der Grundschule zur Verfügung stellen könnte!

Das Raumkonzept des Kindergartenneubaus orientiert sich am KVJS (Kommunalverband für Jugend und Soziales Baden- Württemberg). Hier sind Mindeststandarte für fünfgruppige Kindergärten mit Ganztagsangebot und Krippe vorgegeben. Selbst ein Hygienekonzept für den Umgang mit ansteckenden Krankheiten ist in entsprechende Entwürfe eingearbeitet. Somit erhalten wir in Untergrombach ein umfassendes Betreuungsangebot.

Apropos Entwürfe: Der neue Standort für den Kindergarten Kreuzung  Ernst-Renz-Straße und Wittumstraße ist fußläufig aus allen Himmelsrichtungen gut zu erreichen. Der neue Kindergarten bilden mit der „Bundschuhhalle“, den Sportstätten, der Joss-Fritz-Schule und dem Kindergarten St. Wendelinus eine Achse im Herzen von Untergrombach.

Der „Seilbahnspielplatz“ bleibt ebenso wie der schöne alte Baumbestand der Wiese erhalten.

Selbstverständlich hat das Architekturbüro Lindenfelser bei seiner Planung auch an die angrenzenden Wohnhäuser gedacht, so wurde bei der Gestaltung der Fassade und des Daches auf eine Einbindung in die Umgebung geachtet. Die Planung ist durchdacht, sowohl im Bereich Energetik, als auch in der Nachhaltigkeit: Begrünte Dachflächen, eine gute Außendämmung und Photovoltaik auf dem Dach, runden das Paket ab. So passt sich der Bau schön in die Umgebung ein.

Wir als SPD Fraktion sehen diesen Kinderartenneubau schlichtweg als Geschenk. Ein Geschenk an unsere Zukunft: Die Kinder.

Wussten Sie schon? In Deutschland existieren derzeit rund 57.600 Kindergärten. 3,7 Millionen Kinder von 8 Wochen bis 6 Jahre werden so täglich betreut. (Im Normalfall, derzeit nur Notfallbetreuung)

Wussten Sie auch, dass vor beinahe 200 Jahren der Pädagoge Friedrich Fröbel den ersten „Garten“ für Kinder in Thüringen geründet hat? Den Namen Garten hat er dabei ganz bewusst gewählt: Kinder sollten damals Gelegenheit zum Blühen und Wachsen haben. Das sollte der Gegenpol zur autoritären Erziehung sein. Quasi ein pädagogisches „Urkonzept“. Auch heute noch arbeiten die Kindertageseinrichtungen nach bestimmten pädagogischen Konzepten, einer Mischung aus Erfahrung und neuesten pädagogischen Kenntnissen.

Und wussten Sie weiter…bereits um 1780 gründete ein evangelischer Pfarrer sogenannte „Strickschulen“ in denen Kinder sowohl das Stricken lernten, geistliche Lieder sangen, Bibelgeschichten hörten und Basiswissen in Naturwissenschaften erlangten. Es lag die Absicht dahinter, Kinder zu frommen Erwachsenen zu erziehen. Schon damals war die Kirche als Institution beteiligt! Die Betreuung kostete kein Geld, im Gegenteil, die Kinder bekamen einen Taler für ihre angefertigten Strickarbeiten. Man wollte, dass die Kinder weg von der Straße sind und unter gutem Einfluss stehen… Auch ein sehr moderner Gedanke- sind wir in Baden -Württemberg doch für die Abschaffung der KiTa Gebühren, so wie in anderen Bundesländern!!

Im europäischen Umfeld entwickelten sich ähnliche Projekte und schnell kristallisierte sich heraus, dass die Betreuung durch „Frauen mit Verstand und gutem Charakter“ geschehen soll.1. Heutzutage existieren neue moderne Studiengänge wie z.B. Pädagogik der Kindheit, die auf hohem Niveau ausbilden.

Letzte Anmerkung: Bereits im 19.Jahrhundert dienten Kindergärten zur „Entlastung berufstätiger Mütter“. Erfreulicherweise hat sich auch in diesem Punkt etwas getan: Heute sprechen wir von einer Bildungs- und Betreuungseinrichtung statt nur von einem Kindergarten und wir sprechen von „berufstätigen Eltern“ !! So zieht im 21. Jahrhundert die Moderne ein.

Karina Merten, Ortschaftsrätin

 

Quellen:

Kringiel, Danny: Erfindung der Kindergärten- Erblühen in der »Bewahranstalt«. Spiegel Geschichte.

URL: https://www.spiegel.de/geschichte/erfindung-des-kindergartens-so-entstand-die-kita-a-081cdb4b-73b9-4500-a65f-a347ea5d9607 (Stand: 03.02.2021).

Zitat:

Kringiel, Danny: Erfindung der Kindergärten- Erblühen in der »Bewahranstalt«. Spiegel Geschichte.

URL: https://www.spiegel.de/geschichte/erfindung-des-kindergartens-so-entstand-die-kita-a-081cdb4b-73b9-4500-a65f-a347ea5d9607  (Stand: 03.02.2021).

 

Mittelanmeldung für den Haushalt 2024

Mittelanmeldung der SPD-Fraktion im Ortschaftsrat Untergrombach für den Haushalt 2024

Bei der Mittelanmeldung handelt sich dabei größtenteils um Forderungen, die wir schon in den vergangenen Jahren erhoben haben, die aber bisher leider noch nicht bzw. nicht in vollem Umfang erfüllt wurden. Wir sind uns dabei der städtischen Haushaltslage, die durch das Wegbrechen von Einnahmen schwer belastet wird, bewusst. Uns ist klar, dass im nächsten Jahr und wohl auch in den Folgejahren nicht alles zu realisieren ist. Mit Augenmaß und Zuversicht blicken wir in die Zukunft und hoffen, dass sich das eine oder andere dennoch verwirklichen lässt.

Im Einzelnen ergeben sich folgende Punkte für die Mittelanmeldung für 2024: 

Entwicklung Oberdorf

  • Neugestaltung der Obergrombacher Straße – Belebung der Ortsmitte

Das alte Schulhaus mit Verwaltungsstelle und Kindergarten, das Pfarrhauses mit Pfarrbüro, Pfarrsaal sowie die ehemalige Verwaltungsstelle bilden nach einer langen, unansehnlichen Zeit endlich wieder ein unverwechselbares ansprechendes Ensemble. Die Wohnbebauung an Stelle das alten Feuerwehrhauses hat das Gesicht der Obergrombacher Straße positiv verändert. Leider fehlt an der Bushaltestelle immer noch die Stehle mit den Abfahrtszeiten, sowie ein Mülleimer.

Im Bereich von Heimatmuseum bis zur Drehscheibe wird die Obergrombacher Straße den Anforderungen eines Ortsmittelpunkts nicht gerecht. Wir fordern in diesem Bereich die Gehwege, die Straße, die Parkplätze, und den Fußgängerüberweg vor der Kirche sicher und zeitgemäß neu zu gestalten. Besonders der Eingangsbereich am Heimatmuseum muss für Besucher sicherer werden.

Mit Sorge stellen wir fest, dass die Untergrombacher Ortsmitte zunehmend ihre Attraktivität verliert. Insbesondere der Leerstand von Ladengeschäften und die Fehlbelegung des ehemaligen Bistros am Joss Fritz Brunnen zeugen von dem fortschreitenden Verfall. Wir bitten, die Regionale Wirtschaftsförderung Bruchsal mit dem Thema zu betrauen, um die noch vorhandenen Gewerberäumlichkeiten mit Leben zu erfüllen und so den Erhalt eines lebendigen Ortsmittelpunkt, auch für kommende Generationen, zu gewährleisten.

Kommunaler Wohnungsbau

In der Ernst Renz Straße entstand eines der größten Neubauprojekte der kommunalen Bruchsaler Wohnungsbaugesellschaft. Auf einem städtischen Grundstück in unmittelbarer Bahnhofsnähe konnten 17 Wohnungen realisiert werden. Wir hoffen sehr, dass es der Bruchsaler Wohnungsbau auch in den nächsten Jahren immer wieder gelingt, solche Projekte zu realisieren, die zur Entlastung des angespannten Markts für preisgünstiges Wohnen in Untergrombach beitragen.

 

Kinder- und Jugendbetreuung

  • Kindergärten

Gute Kinderbetreuung ist uns ein Herzensthema. Mit Freude sehne wir den Baufortschritt für unseren neuen Kindergarten in der Wittumstraße, der wohl bald bezogen werden kann. Damit dürfte für Untergrombach langfristig ein ausreichendes Betreuungsangebot vorhanden sein.

Um ein ausreichendes Angebot auch für unsere kleinsten Untergrombacher bereitzustellen, bitten wir um Prüfung, ob das TigeR Angebot noch ausreicht um gegebenenfalls bei Bedarf eine Erweiterung zu veranlassen.

  • Schulen

An unserer Joss-Fritz-Grund- und Realschule zeigt sich schon länger ein hoher Raumbedarf. Wir sind froh, dass dort sowohl Kernzeitbetreuung als auch ein Ganztagsbetrieb mit Mensa angeboten werden kann. Allerdings braucht es hierfür ausreichend Räumlichkeiten, um eine optimale Betreuung der Schulkinder zu ermöglichen. Seit Jahren wird hier ein Raum des Schachclubs in der Bundschuhhalle mitgenutzt, weil bei laufendem Schulbetrieb zu wenige Räume für den Unterricht und kontinuierliche Betreuungsarbeit zur Verfügung stehen. Hier muss durch zusätzliche Räume rasch Abhilfe geschaffen werden! Wir fordern, dass der geplante Pavillon bei der Joss-Fritz-Schule für die Kernzeitbetreuung und die Ganztagesbetreuung schnellstmöglich realisiert wird.

Bei Regenfällen ist der Ablauf des Niederschlags im Schulhof ungenügend.  Es bilden sich große Seen, die auch lange nach dem Regen nicht ablaufen. Wir bitten um Prüfung und Optimierung des Wasserablaufs.

  

  • Jugendtreff

Positiv überrascht hat uns die Wiederbelebung des „Förderverein Jugendtreff Untergrombach“. Wir wünschen dem neuen Team viel Erfolg bei Unterstützung der Jugendarbeit. Die Arbeit des Fördervereins unterstützt lediglich das umfangreiche Angebot. Die Mittel für die Jugendarbeit sind im vollen Umfang durch die Stadt bereitzustellen.

 

  • Fahrradabstellanlage Joss-Fritz-Schule

Die Schüler der Joss- Fritz- Schule müssen ihre Fahrräder ohne Wetterschutz abstellen. Ein großer Rückschritt zur Vorgängerschule und sicher kein Aushängeschild für die Fahrradstadt Bruchsal. Wir fordern daher, die Fahrradständer zu überdachen.

  •  Pumptrack

Ein Pumptrack für Mountainbiker, Skateboard- und Inliner-Fahrer*innen ist ein großer Wunsch der Untergrombacher Jugend. Wir möchten, dass die Stadtverwaltung solch einen Rundkurs mit Wellen, Steilkurven und Sprüngen einrichtet. Ein geeigneter Platz und als sinnvolle Ergänzung der Sportanlagen, schlagen wir die Wiese und den Grünstreifen zwischen Joß-Fritz-Straße und FCU Sportanlage vor. (In Karlsdorf – Neuthard, Graben – Neudorf, Tiefenbach wurden solche Anlagen ohne großen finanziellen Aufwand eingerichtet.)

Mobilität

 

Teilhabe / Leben mit Handicap

Wir wünschen uns, dass Untergrombach ein Ort ist, in dem alle gerne leben und sich unkompliziert bewegen und begegnen können. Daher wollen wir die Bedürfnisse von Menschen mit Behinderung stärker in den Blick nehmen. Um Teilhabe am öffentlichen Nahverkehr zu erleichtern, sollen alle Untergrombacher Bushaltestellen barrierefrei ausgebaut und mit einem Wetterschutz versehen werden. Außerdem soll der Ortschaftsrat eine Begehung zentraler Plätze durchführen, bei der Menschen mit Behinderung auf mögliche Mängel hinweisen, die ihnen eine Teilhabe am öffentlichen Leben erschweren. Die AGENDA-Gruppe „Menschen mit Handicap“ könnte hier ein guter Ansprechpartner sein. Bei allen Bau- und Sanierungsmaßnahmen an den Straßen und Gebäuden muss künftig noch stärker darauf geachtet werden, dass sie barrierefrei erfolgen. Ein wichtiger Schritt hier wäre die Ausbesserung und Aufwertung des Rundwegs um den Baggersee, der gerade nach Regenereignissen nicht mit Kinderwagen, Rollatoren und Rollstühlen genutzt werden kann.

 

ÖPNV

  • Schienennahverkehr

Der Bahnhof Untergrombach ist nun Teil des S-Bahnnetz Rhein-Neckar Die Bahnsteige wurden für den S-Bahn Verkehr ertüchtigt. Ein Drittel des Bahnsteiges wurde für barrierefreies Einstiegsniveau vorgesehen. In diesem Bereich gibt es jedoch keinen Wetterschutz. Es fehlen Unterstände an den erhöhten Bahnsteigsbereichen. Fahrgäste, mit Mobiltätseinschränkungen sind dem Wetter schutzlos ausgeliefert.  Die vorhandenen Unterstände sind am andern Ende der Bahnsteige und damit zu weit entfernt. Die derzeitige Situation ist eine Herabsetzung für Menschen mit Handicap. Wir fordern daher die Bahnsteige am Nördlichen Ende mit Unterständen auszustatten.  

  •  Halt der S3 in Untergrombach

Die S3 hält nun stündlich in Untergrombach und Weingarten. Damit wurde ein langgehegter Wunsch direkten Einstieg in das S-Bahnnetz Rhein Neckar zu erhalten erfüllt. Ein großer Wehmutstropfen ist der Verlust des seit 1996 bestehenden 20 Minuten Takt.  Die Bahnen der S31/S32 und der S3 halten unregelmäßig im Abstand von 5! Minuten bis 45 Minuten in den Tagzeiten. Dies trübt die Freude über die neue Einbindung besonders dadurch, dass die S3 mehrmals Untergrombach in der langen Wartephase ohne Halt durcheilt.  Mit einer klugen Planung der Halte lässt sich ein attraktiver 20 Minutentakt wieder herstellen. Wir bitten dies bei dem Besteller der Nahverkehrsleistungen einzufordern.

 

Fahrradboxen am Bahnhof

Die Fahrradboxen am Untergrombacher Bahnhof erfreuen sich großer Beliebtheit. Sie ermöglichen sichere Abstellmöglichkeiten für das eigene Rad und machen so die von uns gewünschte Anreise per Rad zur Bahn attraktiver. Hier sollte durch die Aufstellung zusätzlicher Radboxen das Angebot erweitert werden.

  •  Busverkehr

 Nach Vorgabe des Personenbeförderungsgesetz wären bis zum 1. Januar 2022 an den Bushaltestellen eine vollständige Barrierefreiheit herzustellen. Wir fordern bei diesen noch ausstehenden Baumaßnahmen die Haltestellen mit Wartehäuschen, Sitzgelegenheiten und Müllbehälter auszustatten. Vorrangig die Haltestelle an der JF-Schule Richtung Büchenau und die Haltestellen Büchenauer Straße. (Umstieg von der S-Bahn in die Nachbarorte Obergrombach und Helmsheim)

 

 

  • Einrichtung einer Querverbindung nach Spöck

Wir fordern als sinnvolle Erweiterung des ÖPNV-Netzes eine Busverbindung von Untergrombach Bahnhof zur S-Bahn Endhaltestelle Spöck (Richard Hecht Schule).

Die Verbindung stellt eine attraktive Querverbindung in den südlichen Landkreis dar, der bisher nur umständlich und fahrzeitintensiv im Eckverkehr zu erreichen ist.

  • Ausleitung der S31/S32 in Durlach Richtung Innenstadt Karlsruhe

Der HBF Karlsruhe ist der Hot Spot des ÖPNV im Kreis Karlsruhe, Zugang zum Hochgeschwindigkeitsverkehr der Bahn, Übergang zum Regionalverkehr und einzigartiger Anschluss zur Tram. Die große Mehrheit der Fahrgäste aus Untergrombach hat daher als Ziel Karlsruhe HBF. Eine Einschleifung darf daher nur eine Bereicherung des bestehenden Angebots sein, um neue Fahrgäste hinzuzugewinnen.

Eine Einschränkung der umsteigefreien Anbindung an den HBF lehnen wir strikt ab. 

  • E-Mobilität / E-Car Sharing

 Die Einrichtung des E-Car Sharing in der Joss-Fritz-Straße ist innovativ und zukunftsweisend. Das Angebot soll zügig erweitert und an weiteren Standorten vorgesehen werden. (z.B. Schulstraße, Bundschuhhalle)

  • Gütertrasse Mannheim – Karlsruhe

Die Bahn sucht Platz für eine zusätzliche Bahntrasse von Mannheim nach Karlsruhe. Auch entlang der A5 ist eine Variante im Gespräch. Die SPD Untergrombach hat sich schon in einer frühen Phase gegen diese Variante ausgesprochen, da Untergrombach durch die sechsspurige Autobahn A5 durchgängig Tag und Nacht Verkehrslärm ausgesetzt ist und durch den Ort die Bahnstrecke KBS 701 Heidelberg - Karlsruhe führt. Das Ziel mehr Güter auf die Schiene zu bringen, darf nicht die Wohnqualität der Untergrombacher Bürger einschränken!

 

Fernwärme

Mit dem Erschließen von Geothermischen Wärmequellen in Nachbargemeinden entsteht ein kommunalen Fernwärmenetz. Eine mögliche Anbindung Untergrombachs bitten wir in Betracht zu ziehen.

 

Verkehrsberuhigung

  •  Kreisel am Ortseingang B3 aus Richtung Bruchsal

Auf der B3 am Ortseingang aus Richtung Bruchsal wird trotz des schlechten Straßenzustands viel zu schnell gefahren. Das Ein- und Ausfahren in und aus dem Schollengarten gestaltet sich oft sehr unübersichtlich und unfallgefährdend. Wir fordern wir mit der Fahrbahnsanierung auch den Bau eines Kreisels, wie bereits an mehreren B3 Anliegergemeinden im Landkreis umgesetzt. 

  • Einrichtung einer Querungshilfe an der Gustav Adolf Kirche.

 In Verbindung des erforderlichen barrierefreien Umbaus der Bushaltestelle an der Gustav-Adolf-Kirche soll eine Querungshilfe in der Fahrbahnmitte eingerichtet werden.

  • Lärmentlastung an der Büchenauer Straße/Einfahrbereich Steigweg K3501

Zwischen der Einmündung von Sand II und dem Ortseingangsschild sowie an der Ortseinfahrt von Obergrombach wird die Geschwindigkeit von 70 km/h häufig erheblich überschritten. Geschwindigkeit erzeugt zusätzlichen Lärm.

Der Lärmaktionsplan sieht an diesen Stellen 50 km/h vor. Es sind lediglich die Schilder auszutauschen. Wir fordern dies umgehend umzusetzen.   

 

  • Tempo 30 Steigweg - Michalsberg

Unser Hausberg erfreut sich einer ungebrochenen Beliebtheit, um ein besseres Miteinander von Fußgängern, Radfahrern und Autoverkehr zu ermöglichen und dem Naturschutz gerecht zu werden, muss die Geschwindigkeit für Fahrzeuge auf dem Steigweg 30 km/h begrenzt werden.

  • Radwege

Der Fahrradweg zwischen Untergrombach und Bruchsal in einem baulich schlechten Zustand und bedarf der Ausbesserung. Weiterhin sollte dringend die Einsicht von der B 3 auf den Fahrradweg mittels entsprechender Grünpflege sichergestellt werden.

 

Im Übrigen begrüßen wir die Bemühungen der Stadt Bruchsal auf dem Weg zur Fahrradstadt und freuen uns besonders über Aktivitäten in Untergrombach.  

  • Rötzenweg – Zufahrt zum Wertstoffhof/Grünabfallsammelplatz

Der kombinierte Wertstoff- und Grünabfallsammelplatz im Rötzenweg wird durch den Anlieferverkehr während der Öffnungszeiten stark frequentiert. Häufig wird zu schnell gefahren was eine erhebliche Gefährdung für Radfahrer und Fußgänger darstellt. Wir bitten um eine Überprüfung und ergreifen von verkehrsberuhigenden Maßnahmen.

Sportanlagen

  • Vervollständigen der Rundbahn / weitere Sitzmöglichkeiten Sportpark

Der Bau einer Rundbahn stand seit Anfang der 80er Jahre auf dem Forderungskatalog der SPD-Fraktion. Der Sportplatz ist mustergültig und attraktiv saniert und wird von vielen Sportlern und Jugendlichen intensiv genutzt. Den vielen Gruppen steht lediglich eine einzelne Sitzbank zur Verfügung. Hier ist das Angebot auf mindestens vier Sitzmöglichkeiten zu erweitern. Die vollständige Rundbahn wurde leider nur in einer weiteren Ausbaustufe angedacht. Wir fordern daher, die Sportanlage bei Gelegenheit mit einer Rundbahn zu vervollständigen.

Naherholung in Untergrombach

  • Rundweg um den Baggersee

Das Baggerseegebiet ist ein wichtiges Naherholungsgebiet in erster Linie für die Untergrombacher und natürlich auch für alle Bruchsaler Bürgerinnen und Bürger. Der von uns seit vielen Jahren beantragte Rundweg um den Baggersee ist zwar begehbar. Rollstuhlfahrer, Menschen mit Rollatoren und Kinderwagen haben Probleme, den Baggersee zu umrunden.

Wir fordern einen befestigten Rundweg und ein Plus an Sitzgelegenheiten. Der Rundweg soll barrierefrei genutzt werden können!

  • Trimm – Dich – Pfad

Untergrombach sollte vor über 50 Jahren mit einer Straße zwischen Wendelinus Siedlung und Südstadt verbunden werden – nachzulesen im Eingemeindungsvertrag. Eine Geste der Verbindung, zwischen Bruchsal und Untergrombach wäre ein Trimm Dich Pfad zwischen Parkplatz Baggersee Untergrombach und dem Sportplatz SV 62 / GBZ.

  • Sitzgarnituren Wanderparkplätze, Untergrombacher Wald 

Auf dem Michaelberg bestehen drei sehr gut frequentierte Wanderparkplätze. Um das Angebot abzurunden, sollte an den Parkplätzen Bänke mit Tisch, idealerweise mit Wetterschutz aufgestellt werden.

Der Wald bietet viele schöne Plätze zum Verweilen. Der Forst hat an mehreren Stellen in der Vergangenheit an solchen Plätzen einfache Bänke aus eigenem Holz aufgestellt. Leider ist diese Tradition in Vergessenheit geraten. Wir würden uns freuen, wenn der Forst diese Tradition wieder aufgreifen würde.

  • Grillhütte

Schon vor Jahren forderte die SPD die Einrichtung eines Grillplatzes mit Hütte, um mit einer Gruppe zu feiern gibt es in Untergrombach kaum Möglichkeiten. Das Grillen am Baggersee wurde untersagt, die Nutzung von Grundstücken im Grünen ist durch den Naturschutz weitestgehend unmöglich. Daher greifen wir den Vorschlag von damals wieder auf. Geeignet wäre beispielsweise am Rötzenweg, da hier Wasser und Strom verfügbar wäre.

 

Für die SPD-Fraktion

Anja Krug, Karina Merten, Harald Adam, Heribert Gross, Rainer Müller

 

 

 

 

Chaos am Untergrombacher Baggersee


Baggersee Untergrombach - Bild DLRG

Durch den Coronabedingten Wegfall von Badereisen ins Ausland suchen an den Wochenenden wieder erheblich mehr Baggerseebesucher aus nah und fern Erhohlung am Untergrombacher Baggersee. Zustände die an die 80er Jahre erinnern lassen. Damals sind Parkerlaubniskarten für Anwohner eingeführt worden und die Liegefläche wurde verringert. Der Ortschaftsrat forderte in seiner letzten Sitzung einhellig, durch verstärkte Kontrollen den Besucherstrom einzuschränken und für Ordnung zu sorgen.

Die BNN vom 23. Juli berichtete dazu:

Zu viele Badegäste und Parkprobleme

Chaos am Untergrombacher Baggersee: Jetzt reagiert die Stadt mit Kontrollen

Trinkgelage und Parkchaos, auch am Untergrombacher Baggersee herrschte am Wochenende Ausnahmezustand. Diesem Treiben will die Stadt Bruchsal nicht länger zusehen. Sie pocht auf die Corona-Regeln.

„Wasser und Strand sind öffentlicher Raum”, erklärt Rau weiter. Daher gelten dort die 1,50 Meter Abstand. Gerade am Wochenende war das nicht gewährleistet. Zudem befanden sich viele Badegäste an Stellen, die eigentlich dem Naturschutz vorbehalten sind.

Wir werden die Parkmöglichkeiten einschränken, also die Zahl der Parkplätze reduzieren und verstärkt kontrollieren

Ina Rau, Pressesprecherin der Stadt Bruchsal

Von ähnlichen Zuständen berichten viele Gemeinden. Weil Schwimmbäder oft nur eingeschränkt geöffnet sind, zieht es offenbar noch mehr Menschen als sonst an die Baggerseen.

„Wir werden die Parkmöglichkeiten einschränken, also die Zahl der Parkplätze reduzieren und verstärkt kontrollieren”, kündigt Rau an. So hofft man, dass weniger Badegäste kommen. Außerdem richtet man einen eindringlichen Appell an die Badegäste, die Abstände einzuhalten und die abgesperrten Stellen des Ufers nicht zu betreten. Die Zufahrtsstraßen werden, sobald der Parkplatz voll ist, nur noch für die Anwohner geöffnet sein. Der Gemeindevollzugsdienst wird das kontrollieren.

Auch Grillen ist untersagt - Waldbrandgefahr. Allerdings, so zeigen aktuelle Beobachtungen, halten sich auch an diese Regel viele nicht.

Hier finden Sie die 2021 vom Gemeinderat erlassenen Rechtsverordnung. Auf dieser Seite finden Sie außerdem Informationen zum Baggersee und die aktuellen Untersuchungsergebnisse zur Wasserqualität.

Ein Bild, das Karte enthält.

Automatisch generierte Beschreibung

Grafik Stadt Bruchsal

Ein Bild, das Text, Himmel, Baum, draußen enthält.

Automatisch generierte BeschreibungSeit Sommer 2019 kommen Notrufsäulen der Björn Steiger Stiftung noch auf einem anderen Gebiet zum Einsatz: In Zusammenarbeit mit der Deutschen Lebens-Rettungs-Gesellschaft (DLRG) und dem Verband deutscher Sporttaucher (VDST) stellt die Björn Steiger Stiftung Notrufsäulen an Stränden, Badeseen und Taucheinstiegen auf. Denn oft haben Badegäste kein Handy dabei - so kann die Säule am Ufer zum Lebensretter werden. Und auch im Winter, wenn Eisläufer auf dem zugefrorenen See unterwegs sind und das Risiko eines Eis-Einbruchs besteht, werden die Notrufsäulen gebraucht. 

Mit Beginn der Badesaison 2022 wurde  am Untergrombacher Baggersee eine Notrufsäule aufgestellt.

Sie ist für den Rettungsfall gedacht. Aber auch in Sitationen die polizeiliches Eingreifen erfordern, darf damit  Hilfe angefordert werden.

 

Lärmschutz für Anwohner - 50 km/h für die K3501

Aus Sicht der Bevölkerung ist Lärm eines der drängendsten Umweltprobleme. Viele Menschen klagen über zu hohe Lärmeinwirkungen in ihrem Wohnumfeld. Sie fühlen sich belästigt und in ihrer Lebensqualität beeinträchtigt. Darüber hinaus können sich auch gesundheitliche Nachteile ergeben. Die Lärmbelastung zu senken und ruhige Gebiete vor zukünftiger Verlärmung zu schützen, sind daher wichtige Handlungsziele in Politik und Verwaltung.In Deutschland wurde die Umgebungslärmrichtlinie im Jahr 2005 durch Ergänzung des Bundes-Immissionsschutzgesetzes (BImSchG) um den sechsten Teil „Lärmminderungsplanung“ in nationales Recht überführt. Die Europäische Kommission hat im Jahr 2015 mit CNOSSOS-EU (pdf; 10 MB – Common Noise Assessment Methods in the EU) eine für alle Mitgliedstaaten einheitliche Berechnungsmethode für die relevanten Lärmquellen erarbeitet. Diese sind in Deutschland seit dem 31.12.2018 anzuwenden*. Soweit die Landesanstallt für Umwelt in Baden Württemberg.

Seit vielen Jahren versuchte der Ortschaftsrat Untergrombach eine Geschwindigkeitsreduzierung für die Anwohner an der hochfrequentierten B3 zu erwirken - am 3. August 2020  wurde der Lärmschutzplan umgesetzt.

Darin wird auch eine Lärmentlastung an der Büchenauer Straße/Einfahrbereich Steigweg K3501 vorgesehen, dies wurde bisher nicht umgesetzt.

Zwischen der Einmündung von Sand II und dem Ortseingangsschild sowie an der Ortseinfahrt von Obergrombach wird die Geschwindigkeit von 70 km/h häufig erheblich überschritten. Geschwindigkeit erzeugt zusätzlichen Lärm.

Der Lärmaktionsplan sieht an diesen Stellen 50 km/h vor. Es sind lediglich die Schilder auszutauschen.

Wir fordern dies umgehend umzusetzen.   

 

zum Daten- und Kartendienst der LUBW

 

 

Solitärbau als Erweiterung der Joß-Fritz-Schule


Solitärbau JFS Beispielhaft

Schon länger drückt das Thema Raumnot alle am Schulleben Beteiligten an der Joß-Fritz-Grund- und Realschule. Die Untergrombacher Geburtenzahlen weisen klar darauf hin, dass die Grundschule in den nächsten Jahren dreizügig werden wird und diese künftigen Grundschülerinnen und Grundschüler benötigen selbstverständlich mittelfristig auch Plätze an weiterführenden Schulen.

Von den Überlegungen, die von Architekten und Bauamt dazu geleistet wurden, überzeugt uns der Solitärbau am meisten. Er ermöglicht eine differenzierte Nutzung durch beide Schularten, eine Bauphase, die den Schulbetrieb kaum beeinträchtigt und eine hoffentlich positive Zuschusslage sofern das Land Baden-Württemberg das Programm zum Ganztagesausbau sinnvollerweise verlängert. Da sich bei den bisher errechneten Kosten kaum Einsparpotentiale durch eine Erweiterung im Bestand ergeben, ist ein Solitärbau sinnvoll, zumal dieser auch ggf. in fernerer Zukunft einer anderen Nutzung zugeführt werden könnte. Allerdings besteht jetzt für die nächsten Jahrzehnte erst einmal dringender Raumbedarf an der Joß-Fritz-Grund- und Realschule Untergrombach, den wir hoffentlich in absehbarer Zeit durch einen Solitärbau, der bequem über den Schulhof zu erreichen ist, abhelfen können. Wichtig ist uns noch, das das Solitärgebäude so geplant wird, dass ggf. eine Aufstockung möglich wäre.

Glücklich können wir an dem Tag sein, an dem die Schülerinnen und Schüler in ihren Pausen oder während ihrer Nachmittagsbetreuung im Solitärbau „Solitär“ und andere Spiele spielen! Die SPD-Fraktion stimmt der Variante 3 für eine Erweiterung der Joß-Fritz-Schule zu und freut sich, die weiteren Planungs- und Umsetzungsschritte zu begleiten.

 

Erweiterung der Park & Ride Anlage


P&R Untergrombach

P&R Bahnhof westlich

Nachdem die Baumaßnahmen zur S-Bahn Ertüchtigung abgeschlossen waren, bot sich die Gelegenheit im Westlichen Teil  - oberhalb des Schulsportplatz - die vorhandene Parkfläche zu vergrößern. Diese Maßnahme findet Aufnahme in den Haushalt 2020 und soll auch zeitnah umgesetzt werden. In erster Linie wird hierdurch die Parksituation durch Pender in der Ernst-Renz-Straße entschärft. Es ist zu erwarten, daß durch die Bebauung der Freifläche am Bahnhof und Schaffung von Wohnraum für ca. 40 Familien, der Parkraum in der Ernst-Renz-Straße zukünftig nur noch durch Anwohner genutzt werden kann. 2022 wurde auch dieser Antrag der SPD umgesetzt und die zusätzlichen Stellflächen im Einfahrbereich und oberhalb des Sportplatz fertiggestellt, so daß jetzt ein ausreichendes Parkplatzangebot bereit steht. 

Tipp:

Es befinden sich in unmittelbarer Nähe zum Bahnhof 24 weitere P&R Parkplätze am Rötzenweg.

Diese wurden bereits 2011 - ebenfalls auf Antrag der SPD - ausgewiesen.

Hier findet man meist noch einen freien Parkplatz.

Fahrradboxen

Die Fahrradboxen am Bahnhof sind vollständig vergeben. Es besteht eine überschaubare Warteliste . Wer gerne sein Rad sicher unterbringen möchte, sollte sich auf der Verwaltungsstelle vormerken lassen, um den Bedarf zu signalisieren. Die Erweiterung des Angebots hängt derzeit von der Weiterführung des Landesförderprogramms ab.

 

Wiesengräber auch in Untergrombach möglich

Schon seit langem wünschte sich der Ortschaftsrat die Möglichkeit alternativer Bestattungsformen für den Neuen Friedhof in Untergombach. Am Mittwoch den 17. Oktober 2018  stellte Abteilungsleiter Gerhard Hoffmann bei einer Vorortbegehung die Planungen zur Weiterentwicklung des Neuen Friedhofs dem Ortschaftsrat vor. Eine hohe Akzeptanz ist bei den Urnengräbern in allen Formen in den vergangenen Jahren zu verzeichnen. Lediglich 20% aller Beisetzungen werden als herkömmliche Erdbestattung gewünscht.  Das Angebot in den Kolumbarien Nischen ist derzeit ausreichend, während für Urnenwahlgräber das Angebot auf Grund der hohen Nachfrage, mit und ohne Grabpflege, nur durch kontinuierlichen Ausbau dem Bedarf angepasst werden konnte. Das neue Urnengräberfeld, mit leichten Hügeln und geschwungenen Linien, bildet den Übergang zu den ab 2019 zur Verfügung stehenden Wiesengräbern. Durch den Trend zur Urnenbestattung ist der Platzbedarf rückläufig. Bei gleicher Belegung wie zur Einweihung 1994 noch üblich, so Gerhard Hoffmann, wäre eine Erweiterung des Areals in der Zwischenzeit unvermeidlich. Aufgrund dieser platzsparenden Entwicklung ist es nun möglich, ein Wiesenfeld im hinteren Bereich anzulegen. Durch dieses Wiesenfeld, das ab Anfang 2019 zur Verfügung steht, besteht dann ein breitgefächertes Angebot für die letzten Ruhe, die den individuellen Wünschen von Verstorbenen und Angehörigen Rechnung trägt. Durch Personalmangel hat sich die Einrichtung dieser Bestattungsform in das Jahr 2022 verzögert.

Weitere Informationen über Bestattung und Grabstätten in Bruchsal-Untergrombach:

 
 

Ortschaftsrat lehnt Probebohrung ab


Bohrplatz Staig 1

Beschlussantrag Ortschaftsrat Untergrombach, 16.5.18

 

Ortschaftsrat von Untergrombach sieht eine Gefahr für das Grundwasser durch die Erdölprobebohrung und spricht sich gegen die Bohrung aus

 

Der Ortschaftsrat von Untergrombach spricht sich deutlich gegen die geplante Erdöl-Probebohrung durch die Firma Rheinpetroleum aus.

Das vermutete Ölvorkommen liegt unterhalb unseres Grundwasserspiegels und soll von Weingartener Gemarkung aus angebohrt werden. Dadurch wird es notwendig unseren Grundwasserfluss zu durchstechen mit dem hohen Risiko, dass unser Grundwasser dabei verunreinigt wird. Ein kleiner Unfall, hätte dramatische Folgen für unser Grundwasser. Wir befürchten, dass bei einem - nicht auszuschließenden Unfall – unser Grundwasser für Jahrzehnte oder sogar länger verunreinigt werden kann. Durch die Flussrichtung des dortigen Grundwasserstroms wäre nicht nur Untergrombach, sondern unsere ganze Region betroffen. Sauberes Trinkwasser ist für uns ein hohes Gut, das nicht aus wirtschaftlichen Gründen auf’s Spiel gesetzt werden darf.

Für uns hat der Schutz und Erhalt unserer sauberen Grundwasservorräte eine viel höhere Priorität als die Suche und Ausbeutung eines kleinen Ölvorkommen unterhalb unseres Grundwassers, die alleine wirtschaftlichen Interessen folgt.

Wir erinnern daran, dass sich der Ortschaftsrat bereits in mehreren Sitzungen immer kritisch und ablehnend gegenüber diesem Vorhaben positioniert hat.

Der Ortschaftsrat unterstützt die deutliche Stellungnahme der Stadt Bruchsal gegen dieses Vorhaben an das Regierungspräsidium Freiburg zum Bergrechtlichen Zulassungsverfahren „Steig1“ gem. § 54 Abs. 2 BbergG.

Die Tatsache, dass die Firma Rheinpetroleum für den Bohrplatz nach Weingarten ausweicht und das Grundwasser von dort aus – technisch aufwändig - schräg durchbohrt werden soll, betrachten wir als Zeichen dafür, dass die benachbarten Gemeinden Bruchsal und Weingarten gegeneinander ausgespielt werden, zum Nachteil der Bevölkerung in beiden Orten. Wir fordern deshalb auch die Gemeinde Weingarten auf, gegen das geplante Vorhaben vorzugehen.

 

Der Ortschaftsrat unterstützt auch den Antrag der Stadtwerke Bruchsal hinsichtlich der Ergänzung des Wasserschutzgebiets Bruchsal/Karlsdorf-Neuthard.

 

Wir richten einen Appell an die Stadt Bruchsal, die Gemeinde Weingarten, das Landratsamt Karlsruhe sowie an die zuständigen Landesministerien sich für den Schutz und den Erhalt unseres sauberen Grundwassers einzusetzen.

 

Rhein Petroleum darf Aufsuchungsbohrungen ausführen
Zusätzliche Auflagen berücksichtigen Forderungen der Stadt Bruchsal
Bruchsal (PM) | „Zunächst sind unsere Minimalforderungen durch die Auflagen des Bergamtes umgesetzt worden ! “, sagt Oberbürgermeisterin Cornelia Petzold-Schick. Mit Bescheid vom 1. Februar genehmigt das Landesamt für Geologie, Rohstoffe und Bergbau Aufsuchungsbohrungen durch die Firma Rhein Petroleum auf der Bruchsaler Gemarkung – allerdings mit einer Vielzahl zusätzlicher Auflagen. Damit berücksichtigt das Regierungspräsidium Freiburg zentrale Aspekte aus der Stellungnahme der Stadt Bruchsal. Diese war im Mai 2018 vom Gemeinderat verabschiedet worden.
Grundlage für die jetzt formulierten Auflagen bildet eine unabhängige Überprüfung der für die Trinkwasserversorgung maßgeblichen, geologischen Verhältnisse durch die Landeshydrogeologen. Danach dürften bei planmäßiger Ausführung der Bohrarbeiten keine Probleme für das Grundwasser entstehen. Nach diesem Kenntnisstand könnten die Bohrungen keine seismischen Ereignisse auslösen, so die Stellungnahme des Regierungspräsidiums Freiburg. Allerdings nur, wenn Rhein Petroleum die zusätzlichen Sicherheitsauflagen erfülle.
„Mit dem unabhängigen Gutachten ist eine unserer wesentlichen Forderungen berücksichtigt worden. Außerdem haben wir erreicht, dass die Firma Rhein Petroleum eine sehr engmaschige Überwachung der Grundwasserqualität durchführen muss“, sagt Rechtsamtsleiter Dr. Martin-Peter Oertel. Schon vor Beginn und auch während der gesamten Aufsuchungsbohrungen muss ein umfangreiches Grundwasser-Monitoring erfolgen. Zudem ist der hermetische Schutz des Bohrlochs sicher zu stellen. Hierfür muss zunächst ein abdichtendes Standrohr gesetzt werden. Daran anschließend wird die Bohrung in einer Art „Brunnenschacht“ bis zu ihrem Endpunkt fortgeführt. Ebenfalls umfangreich sind die Vorgaben nach Ende der Bohrarbeiten. Das Bohrloch muss dann vollständig mit speziellem Zement verfüllt werden.
„Die Aufsuchungsbohrungen der Firma Rhein Petroleum sind bei Einhaltung der zusätzlichen Sicherheitsauflagen eine rechtlich erlaubte Tätigkeit. Trotzdem bleiben unsere grundsätzlichen Zweifel, ob solche Ölbohrungen in einem so dichtbesiedelten Gebiet wie der Technologieregion Bruchsal noch zeitgemäß sind“, so Oberbürgermeisterin Cornelia Petzold-Schick abschließend.

Pressemeldung der Stadt Bruchsal vom 13. Februar 2019.

Bohrung Steig 1

Seit dem 27. Mai 2019 wird in Weingarten (Baden) wieder nach Erdöl gebohrt. Im Gewann „Bronnloch“ unweit des Baggersees will Rhein Petroleum mit der Erkundungsbohrung „Steig 1“ ein bereits seit den 1950er Jahren bekanntes Erdölvorkommen neu erschließen. Dieses befindet sich in unmittelbarer Nachbarschaft zum alten Erdölfeld „Weingarten“ aus dem bis in die 1960er Jahre Erdöl gefördert wurde.
Die Erkundungsbohrung erfolgt von einem Bohrplatz im Gewann Bronnloch, zwischen Baggersee und der Bundesstraße 3, im nördlichen Teil der Gemarkung Weingarten aus. Maximal vier Wochen wird die Bohrung dauern, die in einer Tiefe von 900 Metern in den sogenannten Pechelbronner Schichten endet. Dafür wurde im „Bronnloch“ ein Fußballfeld großer Bohrplatz (knapp ein Hektar) eingerichtet und in den vergangenen Tagen eine rund 39 Meter hohe Bohranlage aufgebaut. Wie bei einer Tankstelle ist der Platz komplett abgedichtet.

Zuerst wird etwa 50 Meter senkrecht in die Tiefe gebohrt, ehe die Bohrung abgelenkt wird, um diejenigen Schichten im „Unteren Tertiär“ zu erreichen, in denen Rhein Petroleum förderungswürdige Mengen an Erdöl zu finden hofft. Dieses Bohrziel wurde in Folge umfangreicher seismischer Untersuchungen als vielversprechend definiert. Im Jahr 2012 hatte das Heidelberger Unternehmen auf einer Fläche von rund 280 Quadratkilometern mit seismischen Messungen den Untergrund rund um Karlsruhe untersucht. Anhand der dadurch erhaltenen dreidimensionalen Karten mit erkennbaren Strukturen des Untergrunds ließen sich Hinweise auf Ölvorkommen unter anderem bei Weingarten ableiten. Ob sich tatsächlich noch Erdöl im Untergrund befindet, lässt sich verlässlich nur durch eine Probebohrung nachweisen, die nun gestartet ist.

Rund 150 Meter pro Tag wird die Bohrung voranschreiten. Abgedichtet wird die Bohrung abschnittsweise mit mehreren, teleskopartig ineinander gelegten Rohren. Jeder Abschnitt wird für sich einzementiert. Somit ist der obere Teil der Bohrung mit mehreren Schichten Stahl und Zement abgedichtet. Der Durchmesser, der nach unten hin immer enger werdender Verrohrung beträgt am Bohrziel kaum 18 Zentimetern.

Am Bohrziel angelangt, zeigt es sich dann, ob in den porösen Sandsteinen der Pechelbronner Schichten tatsächlich Erdöl vorhanden ist. Ist dies der Fall, schließt sich unmittelbar eine kurze Probeförderung an, anhand derer die Ergiebigkeit des Ölvorkommens geprüft wird. Hierfür sind zwei Wochen vorgesehen. „Voraussichtlich Anfang Juli steht fest, ob es sich wieder lohnt, Erdöl in Weingarten zu fördern“, betont Reinhold.

Während der Bohrphase gibt es vor Ort neben dem Kieswerk an der Zufahrt ins Bronnloch einen Informationscontainer mit Erläuterungen zum Projekt und Informationen rund um das Thema Erdöl.

Bei wirtschaftlicher Fündigkeit der Bohrung ist geplant, die Produktionsanlage südlich des Gewanns Bronnloch, etwa auf Höhe der Betriebsgebäude der Kiesgrube, zu installieren. Hierfür wird ein neues Genehmigungsverfahren notwendig. Erst wenn dieses Verfahren abgeschlossen sein wird, wäre mit dem Bau der Produktionsanlage und einer Feldleitung zwischen Bronnloch und dem neuen Standort zu rechnen. Das Erdöl würde von dort aus per Tanklastwagen zur Raffinerie nach Karlsruhe transportiert. Auf dem bisherigen Bohrplatz würden lediglich eine Pumpe und die für den Betrieb der Förderpumpe benötigte Ausrüstung verbleiben.

Die Erkundungsbohrung Steig 1 wurde im Rahmen eines bergrechtlichen Betriebsplan- und Wasserrechtsverfahrens unter Beteiligung der Träger öffentlicher Belange eingehend geprüft. Beteiligt wurden u.a. die Gemeinden, die Wasser-, Umwelt- und Naturschutzbehörde des Landratsamts Karlsruhe sowie die Regierungspräsidien Karlsruhe und Freiburg. Die Stellungnahmen der Behörden, regionalen Naturschutzverbände und -gruppen, des regionalen Wasserversorgers sowie der Gemeinde Weingarten und der Stadt Bruchsal flossen in die Nebenbestimmungen der Betriebsplanzulassung ein, die von Rhein Petroleum entsprechend umgesetzt werden. Dem Verfahren ging eine Umweltverträglichkeitsvorprüfung voraus.

Rhein Petroleum hat sich in diesem Zuge zu einem Grundwassermonitoring zur Beweissicherung freiwillig selbstverpflichtet. D.h., vor Beginn der Arbeiten zum Wege- und Bohrplatzbau wurden zwei Grundwassermessstellen im unmittelbaren Abstrom des künftigen Bohrplatzes gebohrt und beprobt. Erst dann durften die Bauarbeiten beginnen. Im weiteren Verlauf wird das Grundwasser zweimonatlich beprobt. Bei Nichtfündigkeit endet das Monitoring nach einem Jahr mit einer abschließenden Beprobung. An der Ausarbeitung des Monitoringprogramms hat neben der Landeshydrogeologie in Freiburg und der Unteren Wasserbehörde des Landratsamts Karlsruhe auch der regionale Wasserversorger mitgewirkt.

Bereits im August 2018 wurden Zäune zum Schutz für Amphibien und Reptilien aufgebaut. Diese Maßnahmen wurden vor Baubeginn erweitert. Sowohl auf dem zukünftigen, rund einen Hektar großen Bohrplatz im Bronnloch als auch auf dem unbefestigten Zufahrtsweg zum Bohrplatz wurden zusätzliche Zäune aufgestellt und Amphibientunnel eingebaut. Insgesamt schützen rd. 1.500 Meter Zaun die Amphibien, die derzeit aus dem Kraichgau zu den Laichgewässern hin und wieder zurückwandern.

Quelle :http://www.rheinpetroleum.de/projekte/bohrung-steig-1.html

 

 

Ortschaftsrat fordert Erhöhung des Personalstands für Jugendtreff,

Angelika Wagner und Vera Herberger berichteten am 17. Oktober dem Ortschaftsrat über die Arbeit im Jugendtreff. Der Jugendtreff in Untergrombach liegt zentral zwischen Bahnhof, Feuerwehrhaus und Supermarkt und hat genügend Abstand zu anderen Anwohnern, sodass Jugendliche ungestört unter sich sein und den Jugendtreff für ihre Interessen nutzen können. Aktuell hat der Jugendtreff drei Öffnungszeiten pro Woche, zu denen Jugendliche kommen und gehen können, wie sie wollen. Das Haus bietet viele Möglichkeiten, um selbstbestimmt Freizeit zu gestalten: Küche, Computerraum und Offener Bereich mit Musikanlage, Billard, Kicker, Dart, Zeitschriften und Spielen stehen den Besucherinnen und Besuchern zur Verfügung. Darüber hinaus gibt es ein Mädchenzimmer sowie einen Basketballkorb und eine Grillstelle im Außenbereich. Durch die Verkehrsgünstige Lage, so berichtet Frau Wagner, kommen auch viele Jugendliche aus Obergrombach und Büchenau in den Jugendtreff nach Untergrombach. Von den Jugendlichen wird lediglich die Öffnung des Jugendtreffs an nur drei Tagen in der Woche bemängelt. Auch die Vertretung bei Urlaub und Krankheit stellt die Jugendarbeiter vor schier unlösbare Probleme. Der Jugendtreff wird sehr gut angenommen und ist ein beliebter Treffpunkt für unsere Jugendlichen.

Der Ortschaftsrat bedankte sich bei den Verantwortlichen für die gute Jugendarbeit und wiederholte einstimmig seine schon seit Jahren geforderte und längst überfällige Aufstockung des Personalkörpers auf mindestens eine volle Stelle für Untergrombach.

Gute Nachrichten: 2020 wurde das Personal auf eine volle Stelle erweitert

 

Weiter Informationen :

https://www.bruchsal.de/,Lde/Home/Leben+in+Bruchsal/Kinder+und+Jugend.html

 

Schulstart 2018

Ein wichtiger Tag im Leben der 36 zukünftigen Erstklässler stand an, der am Samstag, den 17.09.2018 mit der Einschulung gebührend gefeiert wurde. Frau Bensch und Frau Herrmann nahmen ihre Schützlinge  nach der Feierstunde in der Bundschuhalle in Empfang. Traditionell versorgte der Förderverein die wartenden Eltern mit Würstchen, Kuchen und Getränken.

Wir wünschen Schulkindern alles Gute und einen guten Start.

 
Im Jahr 2020/21 gelangt die Schule nach den aktuellen Geburtenzahlen wieder in den Bereich der Dreizügigkeit.
Neben der Ganztagesschule wird auch die Kernzeitbetreuung stark nachgefragt, was sich problematisch auf die Raumbelegung auswirkt. Daher wurde eine Kernzeitgruppe in einen Raum der Bundschuhhalle ausgelagert.

Die Joß-Fritz-Realschule hat für das kommende Schuljahr mit 80 SchülerInnen eine massive Zunahme an Neuanmeldungen zu verzeichnen (Vorjahr 49). Eine Schülerlenkung ist aufgrund des Elternwunsches nach einem Ganztagesangebot sowie aufgrund der Geschwisterkindregelung nur bedingt möglich. Daher müssen voraussichtlich drei Klassen gebildet werden.

Die Ganztagesschule an der Joß-Fritz-Realschule hat sich bewährt. 245 Schülerinnen und Schüler haben sich im aktuellen Schuljahr entschieden. Die Schule steht – wie alle Realschulen – vor der Herausforderung, eine zunehmend heterogene Schülerschaft zu unterrichten, was differenzierte Lernangebote für die unterschiedlichen Leistungsstufen zur Folge hat. Um diese Entwicklungen mit vollem Einsatz und den entsprechenden Räumlichkeiten angehen zu können, hat sich die
Schule dazu entschlossen, den bilingualen Zug ab dem kommenden Schuljahr in Klasse 5 nicht mehr anzubieten.  Im aktuellen Schuljahr nehmen am bilingualen Zug (Englisch) in den Klassen 5 bis 7 insgesamt 83 Schüler teil. Die drei Eingangsklassen (siehe Schülerzahlen) sowie die voraussichtliche Dreizügigkeit in Klasse 8 erschweren die Raumplanung der zweizügig geplanten Realschule

Der kommunale Schulträger stellt die Schulgebäude und sonstige für den Schulbetrieb erforderliche sächliche Ausstattung zur Verfügung. Außerdem stellt er das Personal für die Sekretariate und die Hausmeisterdienste. Der Schülertransport sowie die Organisation des Mittagessens an Ganztagesschulen gehören ebenfalls zu den kommunalen Aufgaben.
Darüber hinaus bietet die Stadt – hier: das Schul-und Sportamt - eine kommunale Schulkindbetreuung an. Diese umfasst die Kernzeitbetreuung, die ergänzende Betreuung zum Ganztagesbetrieb sowie die Ferienbetreuung. Das Schul- und Sportamt ist außerdem wichtiger Ansprechpartner für alle schulischen Akteure und  Beteiligten und in die Weiterentwicklung der kommunalen Bildungslandschaft aktiv eingebunden.

Quelle: Schulbericht 2016/17
 

 

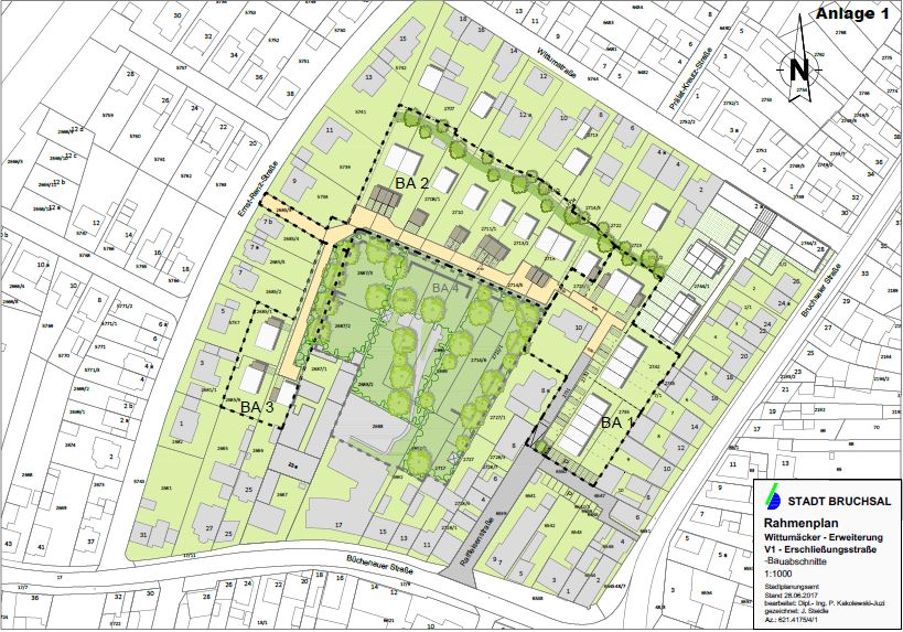
Rahmenplan für die Wohnbauentwicklungsfläche Wittumäcker

Mit der Erarbeitung eines Rahmenplans soll ein neuer Ansatz geschaffen werden, auf dessen Grundlage das Quartier „Wittumäcker“ im Sinne einer Entwicklungsfläche für Wohnbebauung vorangetrieben werden kann. Der Rahmenplan sieht eine schrittweise Umsetzung der städtebaulichen Vorstellungen in 3-4 Bauabschnitten vor. Dafür bedarf es der Aufstellung von Bebauungsplänen für die einzelnen Bauabschnitte.
Der Rahmenplan für das Quartier „Wittumäcker Neuaufstellung“ folgt der Empfehlung der vom Gemeinderat in seiner Sitzung am 24.11.2015 beschlossenen „Wohnflächenentwick-lungskonzeption Bruchsal 2025“ und ist ein erster Schritt zur Entwicklung einer innerörtli-chen Wohnbaufläche von insgesamt ca. 1,8 ha im Ortskern Untergrombachs. Mit dem Beschluss über den Rahmenplan werden die Grundlagen geschaffen um weitere Planungs-schritte einzuleiten.

zu den Sitzungsdokumenten

 

 

Fortschreibung des Einzelhandelskonzeptes für die Stadt Bruchsal - Stadtteil Untergrombach

Das Stadtteilzentrum Untergrombach befindet sich im Stadtteil Untergrombach südwestlich der Bruchsaler Kernstadt. Zum Zeitpunkt der Erhebung konnten im Stadtteil-zentrum lediglich sechs Einzelhandelsbetriebe festgestellt werden. Dabei handelt es sich ausschließlich um Betriebe mit geringer Verkaufsfläche die zum einen der Nahversorgung dienen, wie Betriebe des Lebensmittelhandwerks und eine Apotheke, sowie vereinzelte Fachgeschäfte (insbesondere ein Schuhgeschäft). Ergänzt wird das Angebot durch einzelne wichtige publikumsorientierte Dienstleister, medizinische Einrichtungen und Gastronomie.

Das Stadtteilzentrum erstreckt sich kompakt um den Kreuzungsbereich Bruchsaler Straße/ Obergrombacher Straße. Das erhebliche Verkehrsaufkommen auf diesen beiden Straßen schränkt die Aufenthaltsqualität innerhalb des Zentrums erheblich ein. Im Bereich der Kirche ist ein kleiner Platzbereich zu finden, insgesamt verfügt das Zentrum jedoch über kaum Aufenthaltsmöglichkeiten.

Städtebaulich ist das Zentrum teilweise durch historische Gebäudestrukturen geprägt. Auffällig ist jedoch, dass eine Vielzahl von Gebäuden und Fassaden einen erheblichen Sanierungsbedarf aufweisen.

Im Konzept von 2006 wurde für das Stadtteilzentrum Untergrombach keine Abgrenzung vorgenommen, diese wurde im Rahmen der Fortschreibung ergänzt. Durch das sehr geringe Einzelhandelsangebot innerhalb des Stadtteilzentrums ist jedoch festzuhalten, dass es sich dabei um ein im Bestand sehr gefährdetes Zentrum handelt. Durch den "Wegfall" von nur einzelnen Betrieben verglichen mit dem zentralen Versorgungsbereich Innenstadt zeigt das Stadtteilzentrum Untergrombach als einziger weiterer, im rechtlichen Sinne, zentraler Versorgungsbereich zu bezeichnender Standort erhebliche bauliche und funktionale Defizite. könnte das Zentrum erheblich an Versorgungsfunktion verlieren.

Perspektive

Das Stadtteilzentrum Untergrombach als einziger weiterer zentraler Versorgungsbereich neben der Innenstadt sollte erhalten und gestärkt werden. Zur langfristigen Erhaltung des Zentrums ist jedoch ein Ausbau des vorhandenen Einzelhandelsangebotes erforderlich. Dazu bietet sich das Ladenlokal des ehemaligen Lebensmitteldiscounters sowie die das Gebäude umgebende Fläche an. Insbesondere das Nahversorgungsangebot innerhalb des Zentrums sollte gestärkt werden um die tägliche Frequenz zu erhöhen und die Versorgungsfunktion des Zentrums langfristig zu sichern.

Zusätzlich sollte der zentral gelegene Kreuzungsbereich aufgewertet und gestaltet werden. Ziel sollte es bei einer Neugestaltung sein, den Zentren Charakter von Untergrombach stärker herauszustellen.

Quelle: Gesamtgutachten zur Fortschreibung des Einzelhandelskonzeptes für die Stadt Bruchsal

Zum Sitzungsdokument

 

Lärmaktionsplan Ergebnisse für Untergrombach

Maßnahmen zur Lärmminderung im Straßenverkehr

In dunkelgrüner Farbe sind die Bereiche markiert, die auf 30 km/h reduziert werden sollen.

Diese sind in den Lärmschwerpunkten in Untergrombach auf der B 3 (gesamte Ortsdurchfahrt)

sowie K 3501/ B 3 bis Joß-Fritz-Straße

 

 

 

 

 

 

 

 

 

 

 

 

Maßnahmen Schienenverkehrslärm, Lärmschutzwand 2m Höhe Untergrombach

Lärmschutzwand, östlich der Schienenachse (Bestand) Tullastraße bis Im Weier 1.155 m

Lärmschutzwand, westlich der Schienenachse zwischen TC BW Untergrombach und K 3501 ca. 770 m

aus :

Lärmaktionsplanung Bruchsal

http://www.bruchsal.de/,Lde/Home/Politik_Rathaus/Laermaktionsplanung.html

 

 

 

Bürgerbeteiligung

... mehr Transparenz durch „Trialog“ zwischen Bürgerschaft, Gemeinderat und Verwaltung!

 

Bürgermitwirkung ist ein wichtiger Bestandteil unserer Kommunalpolitik. Wenn Bürgerinnen und Bürger sich aktiv in kommunalpolitische Fragen einbringen, Anregungen und Impulse geben, findet gelebte Demokratie statt. Die Stadt Bruchsal hat deshalb in den vergangenen Jahren verstärkt ihre Bürgerinnen und Bürger in Entscheidungsprozesse mit einbezogen. Ebenso liegt uns eine transparente Informationspolitik am Herzen, denn diese trägt zu einem guten Vertrauensverhältnis im „Trialog“ zwischen Bürgerschaft, Gemeinderat und Verwaltung bei.

Informationen zu aktuellen Bürgerbeteiligungsprozessen finden Sie hier:

 

Bürgerdialog "Bruchsal wächst! Wohnen und Zusammenleben"

 

Bruchsal prosperiert und wächst! Daraus ergeben sich Herausforderungen und Chancen, die es in Zukunft zu gestalten gilt. Auf welche Weise und in welche Richtung sich Bruchsal entwickeln soll möchte die Stadtverwaltung im Rahmen eines breit angelegten Konsultationsverfahrens mit den Bürgerinnen und Bürger besprechen. Im Mittelpunkt stehen dabei die Themen „Wohnen und Zusammenleben“.
Näheres zum Ablauf und zu den Inhalten erfahren Sie hier.

 

Auch künftig wollen wir diesen Weg der Transparenz und Bürgermitwirkung gemeinsam mit Ihnen weiter gehen.
Bei Fragen und Ideen können Sie sich gerne an die städtische Koordinationsstelle für Bürgermitwirkung wenden:

Stadt Bruchsal
Hauptamt, Abt. Bürgerdienste
Alexandra Geider
Kaiserstraße 66
76646 Bruchsal

alexandra.geider@bruchsal.de
Telefon: 07251/79-373


 


Bereits durchgeführte Beteiligungsprozesse für Bruchsal, Untergrombach, Büchenau:

Quelle: Stadt Bruchsal Bürgerbeteiligung  

 


 

 

Bahnprojekt Mannheim–Karlsruhe

Die Bahn sucht Platz für eine zusätzliche Bahntrasse von Mannheim nach Karlsruhe.

Auch entlang der A5 ist eine Variante im Gespräch.

Die SPD Untergrombach hat sich schon in einer frühen Phase gegen diese Variante ausgesprochen, da Untergrombach durch die 6 Spurige Autobahn durchgängig Tag und Nacht Verkehrslärm ausgesetzt ist und durch den Ort die Bahnstrecke Bruchsal - Karlsruhe führt. 

Die Bahn hat bereits 1985 versäumt, eine Verbindung von der Schnellbahn Mannheim - Stuttgart - ab dem Abzweig Molzau nach Karlsruhe umzusetzen. Somit ist der Schnellverkehr der Bahn in diesem Abschnitt langsamer als im Gothardtunnel. Eine Güterbimmelbahn die sich durch unseren Landkreis schlängelt löst dieses Problem sicherlich nicht. Daher kann nur eine weitgehend unterirdische Trasse für internatationale Zugverkehre des Personen und Güterverkehr eine generationsübergreifende Lösung sein. Im übrigen hat die Bahn ihre Infrastruktur auf den Besandsstrecken auf ein Minimum zurückgebaut. Die Gütergleise zwischen Mannheim Rangierbahnhof und Heidelberg sind stillgelegt, ebenso das Gleis 9 in Durlach, über das Güterzüge frühzeitig in den Karlsruher Güterbahnhof einfahren konnten. Warum ertüchtigt die Bahn nicht bereits jetzt ihren Bestand, um einen flüssigeren Zugverkhr zu ermöglichen? Lediglich eine Trasse Genua-Rotterdam entlastet unsere Straßen hier nicht. Leider ist in dieser Gütertrasse kein zukunftsweisendes Verkehrskonzept zu erkennen, das letzlich die Straße entlastet und somit den Lärm unserer A5 senkt und den Ausbau auf 8 Spuren überflüssig machen würde. 

 

Hier zur offizelle Seite der Bahn:

Bahnprojekt Mannheim–Karlsruhe und Dialogforum

Das Bahnprojekt Mannheim–Karlsruhe ist Teil des Gesetzes zum Ausbau der Schienenwege des Bundes. Ziel ist, dass mehr Züge unter anderem zwischen den Metropolen Rhein-Neckar und Karlsruhe fahren können. Dadurch wird auch zwischen Frankfurt am Main und Basel ein Engpass aufgelöst. Das Dialogforum steht maßgeblich für die frühe Beteiligung der Öffentlichkeit beim Bahnprojekt Mannheim–Karlsruhe. Es repräsentiert die Interessen der unterschiedlichen Akteure und soll alle Fakten auf den Tisch bringen. Mitglieder erfahren so verschiedene Sichtweisen jeweils aus erster Hand. Die Bahn bietet bei Bedarf Workshops für detaillierte Fachthemen an. Die intensive Arbeit des Dialogforums macht die Suche nach der bestmöglichen Neu- und Ausbaustrecke transparent und nachvollziehbar. Das Dialogforum ergänzt die gesetzlich vorgeschriebenen Verfahren. Es fungiert als Beratungsgremium, arbeitet Fakten auf und spricht Empfehlungen aus. Die DB berücksichtigt diese in ihren Planungen soweit das möglich ist. Die Treffen finden regelmäßig statt. Eine externe Moderation leitet die Sitzungen. Die Bahn stellt die Ergebnisse transparent zum Nachlesen auf die Projektwebsite.

Auf www.mannheim-karlsruhe.de gibt es im Internet alle notwendigen Informationen zum Bahnprojekt

 

 

Auszug aus der Hauptsatzung der Stadt Bruchsal

Diese Hauptsatzung tritt am 1. November 2016 in Kraft. Zum gleichen Zeitpunkt tritt die bisherige Hauptsatzung vom 11. April 1995 mit ihren Änderungen außer Kraft.

VI. Ortschaftsverfassung

§ 12 Bildung und Zusammensetzung der Ortschaftsräte

(1) In den Ortschaften (§ 1 Abs. 2) werden Ortschaftsräte gebildet.

(2) Die Zahl der Ortschaftsräte beträgt

in der Ortschaft Büchenau 10 Mitglieder in der Ortschaft Heidelsheim 12 Mitglieder in der Ortschaft Helmsheim 10 Mitglieder in der Ortschaft Obergrombach 10 Mitglieder in der Ortschaft Untergrombach 12 Mitglieder

§ 13 Zuständigkeit des Ortschaftsrats

(1) Der Ortschaftsrat hat die örtliche Verwaltung zu beraten (§ 70 Abs. 1 Satz 1 GemO).

(2) Der Ortschaftsrat ist zu wichtigen Angelegenheiten, die die Ortschaft betreffen, rechtzeitig vor der Entscheidung der zuständigen Gremien der Stadt zu hören (§ 70 Abs. 1 Satz 2 GemO).  

(3) Gegenstand der Anhörung sind die wichtigen Angelegenheiten, die erhebliche Auswirkungen auf das örtliche Gemeinschaftsleben haben und für den Bereich der Ortschaft von besonderer Bedeutung sind. Ganz konkrete, die Belange der Ortschaft in spezieller Weise berührende Auswirkungen müssen festzustellen sein. Dies ist insbesondere gegeben bei:

1. Veranschlagung der Haushaltsmittel,

2. Feststellung der Schlussabrechnung für Bauvorhaben,

3. Ausgestaltung, Änderung und Aufhebung der örtlichen Verwaltung,

4. Ausgestaltung, Änderung und Aufhebung von Bauleitplänen einschließlich vorhabenbezogener Bebauungspläne sowie die Durchführung von Bodenordnungsmaßnahmen und der Erschließung sowie städtebauliche Sanierungsmaßnahmen nach dem Baugesetzbuch,

5. Planung, Errichtung, Änderung und Aufhebung öffentlicher Einrichtungen

6. Verkehrsplanung, insbesondere Gemeindestraßen und Wirtschaftswege sowie Brücken und Wasserläufe,

7. Erlass, Änderung und Aufhebung von Ortsrecht, die Stadtteile betreffend,

8. Feuerwehrwesen, die jeweilige Abteilung betreffend,

9. Jagdverpachtung und Verpachtung der Fischerei und Weiderechte,

10. Festsetzung von Abgaben und Tarifen, sofern sie nicht für die Gesamtstadt gelten,

11. Veräußerung und Erwerb von Grundeigentum im Rahmen der Dorfentwicklung sowie bei der Ansiedlung immissions- und emissionsrelevanter Industriebetriebe,

12. Beeinträchtigung oder Auswirkungen bei sonstigen Angelegenheiten, z.B. überörtlicher Verkehrsplanung, Emissions- und Immissionsbelange,

13. Benennung von Straßen, Wegen und Plätzen,

14. Städtepartnerschaft.

(4) Der Ortschaftsrat hat ein Vorschlagsrecht in allen Angelegenheiten, die die Ortschaft betreffen

(§ 70 Abs. 1 Satz 3 GemO). Dabei muss es sich im Gegensatz zu § 70 Abs. 1 Satz 2 GemO nicht um wichtige Angelegenheiten handeln.

§ 14 Ortsvorsteher/in

(1) Für die Ortschaften werden Ortsvorsteher/innen bestellt. Der/die Ortsvorsteher/in ist Ehrenbeamte/r auf Zeit. Der/Die Ortsvorsteher/in und ein oder mehrere Stellvertreter/innen werden nach der Wahl der Ortschaftsräte vom Gemeinderat der Stadt Bruchsal auf Vorschlag des Ortschaftsrats aus dem Kreis der zum Ortschaftsrat wählbaren Bürger/innen, die Stellvertreter/innen aus der Mitte des Ortschaftsrats gewählt (§ 71 Abs. 1 GemO).

(2) Der/Die Ortsvorsteher/in vertritt den/die Oberbürgermeister/in ständig beim Vollzug der Beschlüsse des Ortschaftsrats und bei der Leitung der örtlichen Verwaltung (§ 71 Abs. 3 GemO).

(3) Der/Die Ortsvorsteher/in ist Vorsitzende/r des Ortschaftsrats (§ 69 Abs. 3 GemO).

(4) Sofern der/die Ortsvorsteher/in nicht gleichzeitig Mitglied des Gemeinderats der Stadt Bruchsal ist, kann er/sie an den Verhandlungen des Gemeinderats und seiner Ausschüsse mit beratender Stimme teilnehmen (§ 71 Abs. 4 GemO).

§ 15 Örtliche Verwaltung

In den einzelnen Ortschaften wird je eine örtliche Verwaltungsstelle eingerichtet.

VII. Schlussbestimmungen

§ 16 Inkrafttreten

Diese Hauptsatzung tritt am 1. November 2016 in Kraft. Zum gleichen Zeitpunkt tritt die bisherige Hauptsatzung vom 11. April 1995 mit ihren Änderungen außer Kraft.

 

Einschleifung der S31/32 in die Karlsruher Innenstadt


Bericht BNN vom 3. Juni 2019

Auszug aus der Netzkonzeption 2020/2030 KVV Neubaustrecken zur besseren Anbindung/Erschließung:

Einschleifung der S31/S 32 (BMO- Bahn) in die Innenstad t in Höhe des Otto-Dullen ­kopf-Parks, um das Karlsruher Modell zu vervollständigen.

Wiederaufnahme der alten Idee, die nicht zu Lasten einer schnellen Verbindung zwischen dem Bf Durlach und dem Hbf Karlsruhe gehen darf.

Quelle: Netzkonzeption 2020 / 2030 – Abschlussbericht VBK | AVG | KVV